Используя водостойкий графит, графит с водяной рубашкой можно эффективно производить HCl и гарантировать точный контроль температуры и оптимальные условия реакции.
предмет номер :
SSLЗаказ (Минимальный заказ) :
1Оплата :
Alipay PayPal westernunion T/T L/CПроисхождение продукта :
ChinaЦвет :
CustomizedПорт доставки :
shanghai shenzhen guangzhouВремя выполнения :
please contact 504893184@qq.com or CP +8613696510409Упаковка :
CustomizedМатериал :
GraphiteРабочая температура :
Export≤45℃,Graphite wall≤170℃Печь для синтеза хлористого водорода с водяной рубашкой из графита
Печь состоит из стального кожуха, графитовой крышки, синтетического цилиндра и пода. Она имеет ряд преимуществ по сравнению с печью со стальным кожухом, в том числе:
1. длительный срок службы (обычно более десяти лет);
2. высокая кислотная чистота продукта;
3. благоприятные условия труда с простым контролем и управлением.
Преимущества продукта
Печь для синтеза хлористого водорода с водяной рубашкой из графита отличается исключительной коррозионной стойкостью, эффективной теплопередачей, стабильным регулированием температуры и долговечностью. Её прочная конструкция обеспечивает надёжную работу в агрессивных химических средах, обеспечивая безопасное, стабильное и эффективное производство HCl с минимальными требованиями к обслуживанию.
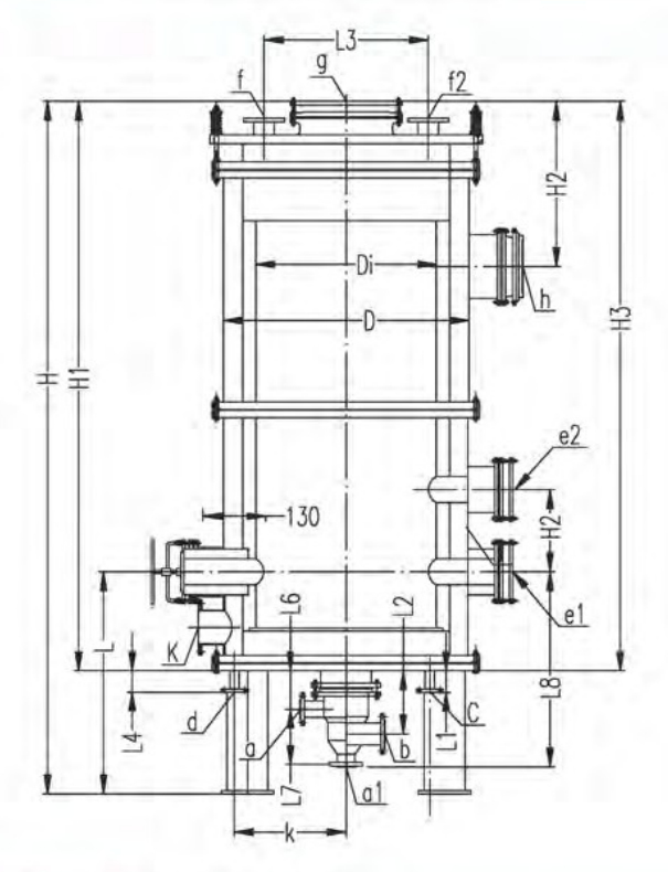
Структурная схема
| Подробности о деталях | |
| 1 | Взрывозащищенный порт |
| 2 | Выход охлаждающей воды |
| 3 | Выход охлаждения |
| 4 | выход HCl |
| 5 | Графитовый синтетический цилиндр |
| 6 | Дверца печи |
| 7 | Вход охлаждающей воды |
| 8 | Зеркало |
| 9 | Три комплекта горелок из кварцевого стекла |
| 10 | Зеркало |
| 11 | Сливной порт |
| 12 | Выход кислоты |
| 13 | Вход хлора |
| 14 | Вход водорода |
Таблица параметров сопел

| Символ | a | b | c | d | e | f | g | h | k |
| Технические характеристики | ДН/Д1 | ДН/Д1 | DN | DN | DN | DN | DN | ДН/Д1 | DN |
| SSL-300 | 40/125 | 40/125 | 20 | 50 | 125 | 80 | 250 | 75/180 | 40 |
| SSL-400 | 55/145 | 55/145 | 20 | 50 | 125 | 100 | 250 | 100/210 | 50 |
| SSL-500 | 70/180 | 70/180 | 20 | 50 | 125 | 125 | 250 | 125/240 | 65 |
| SSL-600 | 84/210 | 84/210 | 20 | 50 | 125 | 150 | 400 | 150/295 | 80 |
| SSL-700 | 100/210 | 100/210 | 20 | 50 | 125 | 200 | 400 | 200/350 | 100 |
| SSL-800 | 115/240 | 115/240 | 20 | 50 | 125 | 200 | 400 | 200/350 | 100 |
| SSL-900 | 115/240 | 115/240 | 20 | 50 | 125 | 200 | 400 | 250/400 | 125 |
| SSL-1000 | 115/240 | 115/240 | 20 | 50 | 125 | 200 | 400 | 250/400 | 150 |
| Сопло стандарт подключения |
HG 20593 | HG 20593 | - | HG 20593 | - | HG 20593 | - | - | HG 20593 |
| Уровень давления МПа |
1.0 | 1.0 | - | 1.0 | - | 1.0 | - | 1.0 | 1.0 |
| Использование насадки | Вход водорода | Вход водорода | Выход кислоты | Выхлопное отверстие | Зеркальный порт | Выход воды | Взрывозащищенный порт | Выход гидрогенизированного водорода | Вход охлаждающей воды |